Budapest, XVIII. kerület

79.9 million HUF
1 401 754 HUF/m²
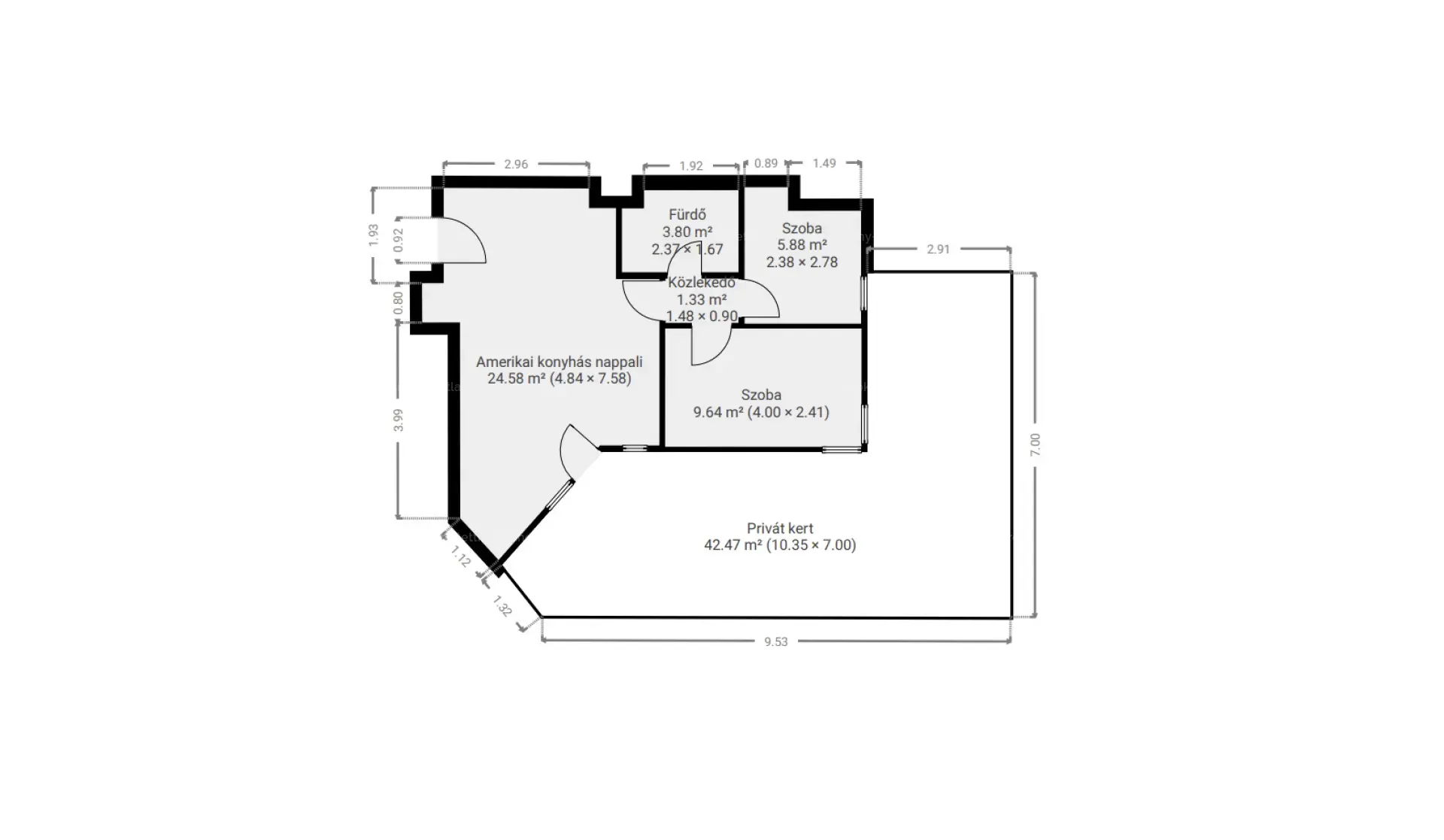
Floor Area
52m2
Rooms
3
Balcony
10m2

Premium Loan Offer

Down Payment
info
15 980 000 HUF
+
Loan Amount
info
63 920 000 HUF
=
Monthly Installment
info
498 918 HUF/month

For sale apartment (brick-built)

Floor Area
52 m²
Balcony Area
10 m²
Has Garden
Yes
Number of Rooms
3
Heating
Central Heating with Individual Metering
Energy Certificate
B
Property Condition
Newly Built
Year of Construction
2010
Building Floors
4 Stories
Floor
Ground Floor
Has Basement
No
Elevator
Yes
Solar Panel
No
Insulation
Yes
Parking Space
Private Garage
View
Garden View
Air Conditioned
Yes
Orientation
Southwest
Panel Program
No

Description

Eladó sorba került ez az 52 négyzetméter alapterületű, 2 szobás, 1 félszobás, klímás, kertkapcsolatos lakás egy remek lakóparkban!

További információkért keressenek bizalommal!

Map

Budapest, XVIII. kerület

Crime Map

Arany Marcell Agent
Telefonszám +3630471
abcd