Budapest, II. kerület

220 million HUF
1 803 279 HUF/m²
Floor Area
122m2
Rooms
5

Premium Loan Offer

Down Payment
info
44 000 000 HUF
+
Loan Amount
info
176 000 000 HUF
=
Monthly Installment
info
1 374 050 HUF/month

For sale apartment (brick-built)

Floor Area
122 m²
Has Garden
Yes
Number of Rooms
5
Heating
Gas Boiler
Property Condition
Fair Condition
Year of Construction
1976
Building Floors
2 Stories
Floor
Ground Floor
Has Basement
No
Elevator
No
Solar Panel
No
Insulation
Yes
Parking Space
Private Garage
View
Panoramic View
Air Conditioned
No
Orientation
Southwest
Panel Program
Yes

Description

Rövid ajánlás
Kétgenerációs kertkapcsolatos lakást keres Budapest egyik legnívósabb, zöldövezeti részén? Ez az ingatlan kivételes lehetőség azok számára, akik saját igényeik szerint alakítható, nagy potenciállal rendelkező otthont szeretnének a II. kerület egyik legkeresettebb utcájában. A természet közelsége, a nyugodt környezet és a praktikus beosztás mind adott – érdemes személyesen is megnézni!

Elhelyezkedés
A lakás a II. kerületben, Vérhalom egyik csendes kis utcájában található, két nagykövetség közelségének köszönhetően rendkívül biztonságos környezetben. A környék ősfás, zöldövezeti, kiváló infrastruktúrával: a közelben óvoda, iskola, játszótér, éttermek és bevásárlási lehetőségek egyaránt megtalálhatók. A Balogh-szikla és a Budai-hegység néhány perc sétára elérhető, így a természetkedvelők számára is ideális választás. Tömegközlekedés szempontjából szintén kiváló – 11-es, 29-es és éjszakai járatok biztosítják a gyors belvárosi kapcsolatot.

Épület jellemzői
A hatlakásos társasház 1976-ban épült, rendezett és jó statikai állapotú épület. A házat csendes, ápolt környezet veszi körül, a nagy, ősfás kertet jelenleg egyik lakó sem használja, így különösen nyugodt és intim légkört biztosít. A lakáshoz garázs és tároló is tartozik, ami nagy előny ebben a környékben.

Lakás jellemzői
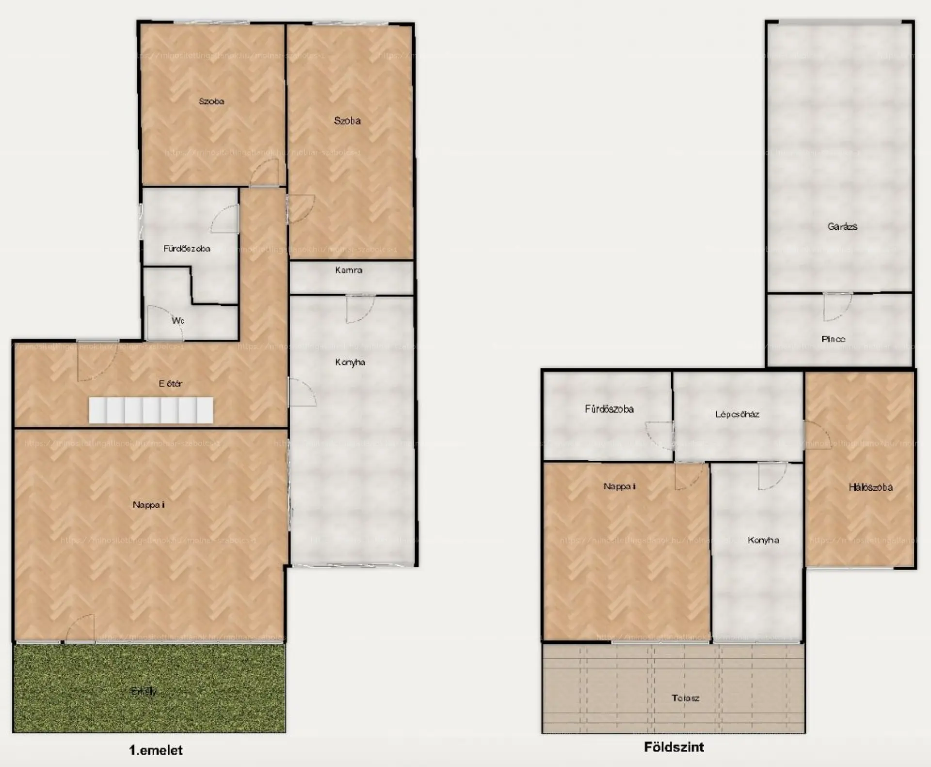
A belső kétszintes, két külön bejárattal rendelkező, dupla komfortos téglalakás összesen 122 m²-es(+22nm erkély), amely ideális kétgenerációs otthonnak, de könnyen összenyitható egy nagy egységgé is.
Felső szint (80 m²): nappali, két hálószoba, konyha, kamra, fürdőszoba, külön WC és erkély.
Alsó szint (42 m²): másfél szoba, konyha, fürdőszoba WC-vel és terasz közvetlen kertkapcsolattal.
A lakás tájolása déli–délnyugati, így egész nap világos. Beosztása jól használható, a nappali–konyha–terasz kapcsolat pedig kellemes életteret biztosít.
Az alsó szint részlegesen felújított, a felső szint teljes felújítást igényel, így a leendő tulajdonos saját ízlésére szabhatja az egész otthont. Mindkét szint külön kondenzációs gázkazánnal rendelkezik.

A lakáshoz tartozik egy 16 m²-es garázs és egy 5 m²-es tároló is.

Ha Ön olyan ingatlant keres, amely kivételes elhelyezkedéssel, rugalmas alaprajzzal, kertkapcsolattal és hatalmas fejlődési potenciállal rendelkezik, akkor ne hagyja ki ezt a lehetőséget! Az ingatlant maguk az építtető-tulajdonosok kínálják eladásra, így minden részletet ismerünk – hívjon bizalommal és jöjjön el megtekinteni!

Map

Budapest, II. kerület

Crime Map

Molnár Szabolcs Agent
Telefonszám +3630576
abcd