Budapest, XI. kerület

138 million HUF
2 225 806 HUF/m²
Floor Area
58m2
Rooms
2
Balcony
8m2

Premium Loan Offer

Down Payment
info
27 600 000 HUF
+
Loan Amount
info
110 400 000 HUF
=
Monthly Installment
info
891 428 HUF/month

For sale apartment (brick-built)

Floor Area
58 m²
Balcony Area
8 m²
Has Garden
No
Number of Rooms
2
Heating
Heat Pump
Property Condition
Newly Built
Year of Construction
2026
Building Floors
3 Stories
Floor
1st Floor
Has Basement
No
Elevator
No
Solar Panel
No
Insulation
Yes
Parking Space
Underground Garage Spot
View
Garden View
Air Conditioned
Yes
Orientation
South
Panel Program
No

Description

SASADON, ÚJÉPÍTÉSŰ, PRÉMIUM MINŐSÉGŰ LAKÁSOK ELADÓK!

Budán, Sasad csendes, mégis frekventált részén épül ez a 4 lakásos, modern társasház, melyben 2–4 szobás, igényes otthonok várják új tulajdonosaikat.
A több évtizedes tapasztalattal rendelkező beruházó és kivitelező neve garancia a minőségre, a gondos tervezésre és a precíz kivitelezésre.
A lakások kiváló benapozottságúak, energiatakarékosak, és hőszivattyús rendszerrel, mennyezeti hűtés-fűtéssel, valamint padlófűtéssel készülnek.
A belső elrendezés és burkolatok a vevők igényei szerint alakíthatók, így minden lakás valóban egyedi otthonná válhat.
A társasházhoz teremgarázs és tárolók is tartoznak, külön megvásárolható formában.

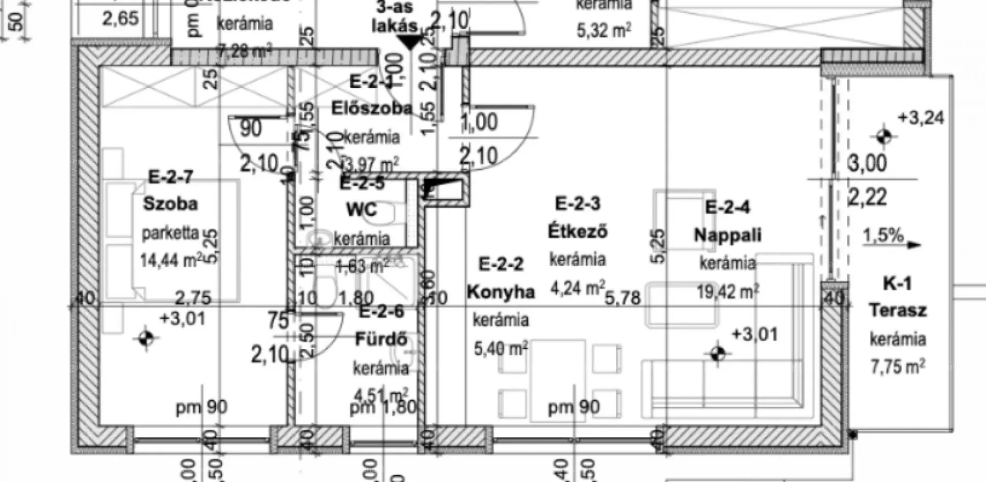
A MEGHIRDETETT LAKÁS – 1. EMELETI, ERKÉLYES OTTHON

Az 58 m²-es, amerikai konyhás nappali + 1 hálószobás lakás tökéletes választás azoknak, akik modern, világos, jól szervezett teret keresnek.
A déli fekvésű, tágas nappali (kb. 29 m²) nagy üvegfelületeinek köszönhetően egész nap fényárban úszik, és közvetlen kapcsolatban áll a 8 m²-es, napos terasszal – ideális hely a reggeli kávéhoz vagy esti pihenéshez.
A lakásban külön WC és egy kényelmes fürdőszoba is található, a praktikus elrendezés pedig kényelmes mindennapokat biztosít akár egy pár, akár egyedülálló számára.

Főbb jellemzők:
• 58 m² hasznos alapterület
• Amerikai konyhás nappali (kb. 29 m²)
• 1 hálószoba
• Déli fekvés – világos, napfényes lakás
• 8 m²-es terasz, közvetlenül a nappaliból
• Fürdőszoba és külön WC
• Igény szerint alakítható burkolatok és belső terek
• Privát, zárható tároló

Műszaki tartalom:
• Hőszivattyús fűtés padlófűtéssel
• Mennyezeti hűtés-fűtés rendszer
• Nagy üvegfelületek, természetes fény egész nap
• Prémium minőségű burkolatok és kivitelezés

Külön megvásárolható:
• Teremgarázs-beállóhely: +15 M Ft
• Tárolóhelyiség: +3 M Ft

Várható átadás: 2027

Ez a lakás tökéletes választás azoknak, akik kényelmes, napfényes, modern otthont keresnek Sasad egyik legkedveltebb részén – kiváló műszaki tartalommal és időtálló értékkel.

Map

Budapest, XI. kerület

Crime Map

Honos Balázs Agent
Telefonszám +3670456
abcd