https://minositettingatlanok.hu/en/real-estate/2140649
Feel-Ing Ingatlanközvetítő Kft. Agent
36309033193
QR kód

Tata

147 million HUF

731 343 HUF/m²
Floor Area
180m2
Plot
873 m²
Rooms
7

For sale house (family house)

Floor Area
180 m²
Plot Area
873 m²
Balcony Area
42 m²
Has Garden
Yes
Number of Rooms
7
Heating
Gas Boiler
Energy Certificate
E
Property Condition
Good Condition
Year of Construction
1993
Building Floors
2 Stories
Has Basement
No
Attic
property.house_attic.attic
Convertible Attic
Built-in
Elevator
No
Solar Panel
No
Insulation
Yes
Parking Space
Underground Garage Spot
View
Garden View
Air Conditioned
Yes
Orientation
Southeast
Panel Program
No

Description

Eladó tágas,két szintes családi ház Tatán.
.
.
.
.
.
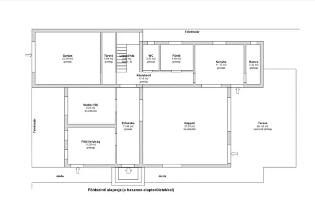
Tatán, egy csendes, nyugodt környéken kínálunk megvételre egy 180 m²-es, két szintes, Habisolból épült családi házat, amely egy 873 m²-es, gondozott, füvesített telken helyezkedik el. Az ingatlanhoz tartozik egy 20 m²-es garázs is.
A ház 1993-ban épült, majd 2015-ben nagyobb felújításon esett át: megújult a külső vakolat, a tetőszerkezet fóliázást és hőszigetelést kapott, részben a tetőlécek is kicserélésre kerültek, valamint a terasz új burkolatot kapott. A cserépfedésű családi ház 6 cm-es külső szigeteléssel rendelkezik, így energiatakarékosan fenntartható.
A fűtésről Viessmann gázkazán, hangulatos cserépkályha, valamint két hűtő-fűtő klíma gondoskodik.
A korszerű biztonsági és kényelmi felszereltség része a riasztórendszer, az automata öntözőrendszer és a nappali–éjszakai 3×25A áramellátás.
A földszinten tágas nappali, konyha, egy kisebb szoba, fürdőszoba, külön WC, fűtőhelyiség és tároló kapott helyet. Az emeleten négy hálószoba, egy polcozott gardróbszoba, valamint fürdő és WC található. A burkolatok változatosak (parketta, járólap, szalagparketta), a nyílászárók részben műanyagból, részben fából készültek, kétrétegű üvegezéssel, részben redőnnyel és szúnyoghálóval felszerelve. A beltéri ajtók mind fából készültek, az emeleten üvegezett faajtók teszik világosabbá a tereket.
A ház vételárába beletartozik a beépített konyha, a garázs polcrendszere és a gardróbszoba teljes berendezése.
A kertben cserépfedéses fedett terasz, kisház és tároló is helyet kapott, így minden adott egy kényelmes, családbarát otthonhoz.

Ár: 147.000.000.Ft.
Erika:+36303513614