https://minositettingatlanok.hu/en/real-estate/1996922
Honos Balázs Agent
36704561118
QR kód

Budapest, XII. kerület

199 million HUF

1 317 881 HUF/m²
Floor Area
151m2
Rooms
4

For sale apartment (brick-built)

Floor Area
151 m²
Has Garden
No
Number of Rooms
4
Heating
Gas Boiler
Property Condition
Renovated
Year of Construction
1920
Building Floors
4 Stories
Floor
1st Floor
Has Basement
No
Elevator
Yes
Solar Panel
No
Insulation
No
Parking Space
Street Parking
View
Street View
Air Conditioned
Yes
Orientation
West
Panel Program
No

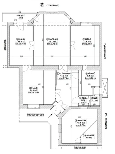
Description

A MOM Park közvetlen közelében, a XII. kerület egyik hangulatos mellékutcájában, eladó a késő szecessziós és funkcionalista stílusjegyeket mutató társasházban, TELJES KÖRŰEN felújított, első emeleti, 151 nm hasznos alapterületű nagypolgári lakás, amely a klasszikus értékeket ötvözi a modern életvitel elvárásaival.

A rendezett társasház első emeletén – ami a félemelet miatt a második szintet jelenti - található, 151 négyzetméteres ingatlan a nagy belmagasságnak és a kivételesen jól szervezett térelosztásnak köszönhetően valóban tágas és világos életteret kínál.

Az utcai fekvésű, napsütötte helyiségek, a hatalmas ablakok és a dél-nyugati tájolású terasz a lakás minden pontján kellemes légkört biztosítanak.

Az impozáns bejáraton keresztül egy nagy méretű hallba érkezünk, ahonnan a modern konyhával és étkezővel kialakított tágas tér is nyílik, melyhez praktikus kamra is kapcsolódik.

A nappali szalon jellegű - az utcafront felé kiugró sokszögű része miatt -, fényárban úszó tér, amelyből két külön nyíló, kényelmes hálószoba és a hangulatos erkély is elérhető.

A harmadik hálószoba is külön bejárattal megközelíthető, így a lakás ideális választás lehet akár nagyobb család számára is.

A kádas, elegáns fürdőszoba központi elhelyezkedésű, a mellékhelyiség külön kapott helyet a praktikum jegyében.

Az ingatlan néhány éve esett át teljes körű műszaki és esztétikai felújításon: új elektromos-, víz- és csatornahálózat, korszerű kondenzációs kazán, padlóban elevezett fűtéscsövekkel, új nyílászárók hőszigetelő üvegezéssel, valódi bambusz parketta, magas fényű frontokkal szerelt, teljesen gépesített konyhabútor (indukciós főzőlappal és dupla WOK gázégőkkel), valamint modern szaniterek biztosítják az esztétikus megjelenést.

A kényelemről és a biztonságról a gépi szellőztető rendszer, a redőnyök és a kiépített riasztó rendszer gondoskodik.

Lokációja kiemelkedő: a csendes mellékutca nyugalma és a MOM PARK és környezete nyújtotta szolgáltatások (bevásárlási lehetőségek, magán egészségügyi intézmények, sportolási lehetőségek, óvodák, iskolák) közelsége egyszerre biztosítja a nyugodt otthoni légkört és az élhető, városi kényelmet.
A kiváló tömegközlekedési kapcsolatoknak (17-es, 61-es villamos, 105-ös, 210-es, 139-es, 140-es, 178-as busz) köszönhetően a belváros és Buda más részei is gyorsan elérhetőek.

Ez a lakás valódi otthont kínál azok számára, akik értékelik a klasszikus polgári stílust, a világos tereket, a modern kényelmet és a kiváló elhelyezkedést, de adottságai alapján reprezentatív iroda vagy igényes magánpraxis kialakítása is lehetséges.

Amennyiben felkeltette érdeklődését, kérem keressen a megadott elérhetőségeken, további részletekkel és alaprajzokkal is állok rendelkezésére!