Halásztelek

94.9 million HUF
939 604 HUF/m²
Floor Area
96m2
Rooms
5
Balcony
10m2

Premium Loan Offer

Down Payment
info
18 980 000 HUF
+
Loan Amount
info
75 920 000 HUF
=
Monthly Installment
info
589 649 HUF/month

For sale apartment (brick-built)

Floor Area
96 m²
Balcony Area
10 m²
Has Garden
Yes
Number of Rooms
5
Property Condition
Like New
Year of Construction
2021
Building Floors
3 Stories
Floor
Ground Floor
Has Basement
No
Elevator
No
Solar Panel
No
Insulation
Yes
Parking Space
Courtyard Parking
View
Garden View
Air Conditioned
Yes
Orientation
Southwest
Panel Program
No

Description

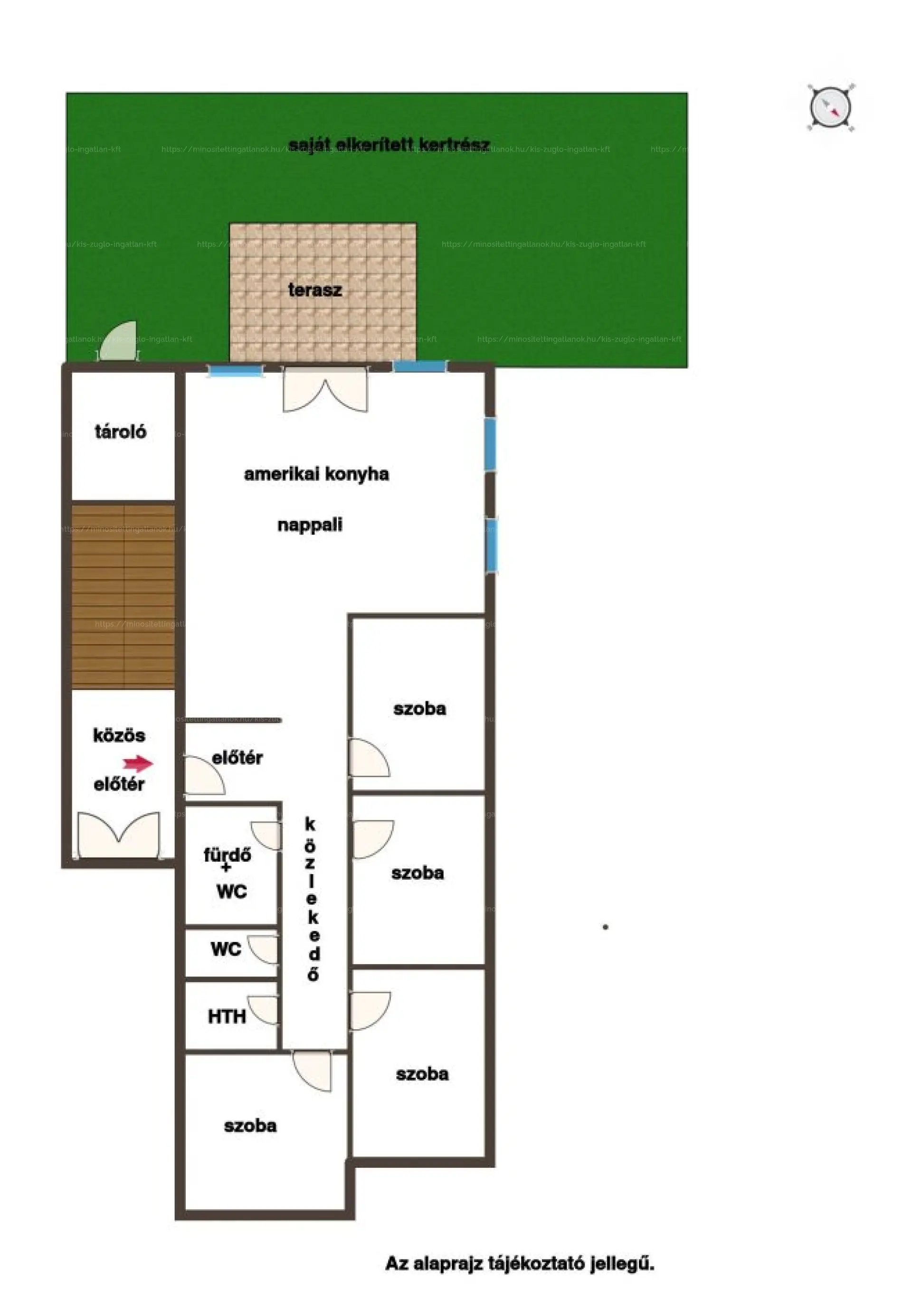
2021-ben épült, modern földszinti lakás saját kerttel várja új tulajdonosát!
Halásztelek csendes, családias részén eladó egy hibátlan állapotú földszinti lakás, amely 96 m²-es alapterületével és nappali + 4 hálószobás kialakításával ideális választás családok számára.
Az ingatlan különlegessége, hogy saját, elkerített kertrésszel rendelkezik, amely az alapító okiratban is rögzítve van, így valóban kizárólagos használatot biztosít.
A csodálatos amerikai konyha kiemelt része az ingatlannak!
A lakáshoz 1 db saját autóbeálló is tartozik.
A lakás főbb jellemzői:
- 30-as téglából épült, 15 cm hőszigeteléssel
- Padlófűtés minden helyiségben, gázcirkó rendszerrel
- Gardróbszoba
- Mosókonyha
- Hőszivattyú
- Klíma
- fúrt kút
- automata öntözőrendszer
- Redőny és szúnyogháló minden ablakokon
- Tágas, világos terek, igényes belső kialakítással
Ez a modern és energiatakarékos otthon tökéletes választás azoknak, akik szeretnének egy igényesen kialakított lakásba költözni, saját kerttel és kiváló műszaki felszereltséggel.
Halásztelekről Budapest belváros tömegközlekedéssel 1 óra alatt, autóval 50 perc alatt elérhető.
Érdeklődésével és megtekintési szándékával várom megtisztelő hívását!
06704311774

Map

Halásztelek

Crime Map

Ferenczi Gabriella Agent
Telefonszám +3670431
abcd