Pilis

34.9 million HUF
210 241 HUF/m²
Floor Area
164m2
Plot
726 m²
Rooms
4

Premium Loan Offer

Down Payment
info
6 980 000 HUF
+
Loan Amount
info
27 920 000 HUF
=
Monthly Installment
info
216 847 HUF/month

For sale house (family house)

Floor Area
164 m²
Plot Area
726 m²
Balcony Area
4 m²
Has Garden
Yes
Number of Rooms
4
Heating
Gas Boiler
Energy Certificate
F
Property Condition
Needs Renovation
Year of Construction
1965
Building Floors
Single-story
Has Basement
Yes
Attic
property.house_attic.attic
Convertible Attic
Built-in
Elevator
No
Solar Panel
No
Insulation
Yes
Parking Space
Courtyard Parking
View
Street View
Air Conditioned
No
Orientation
Southwest
Panel Program
No

Description

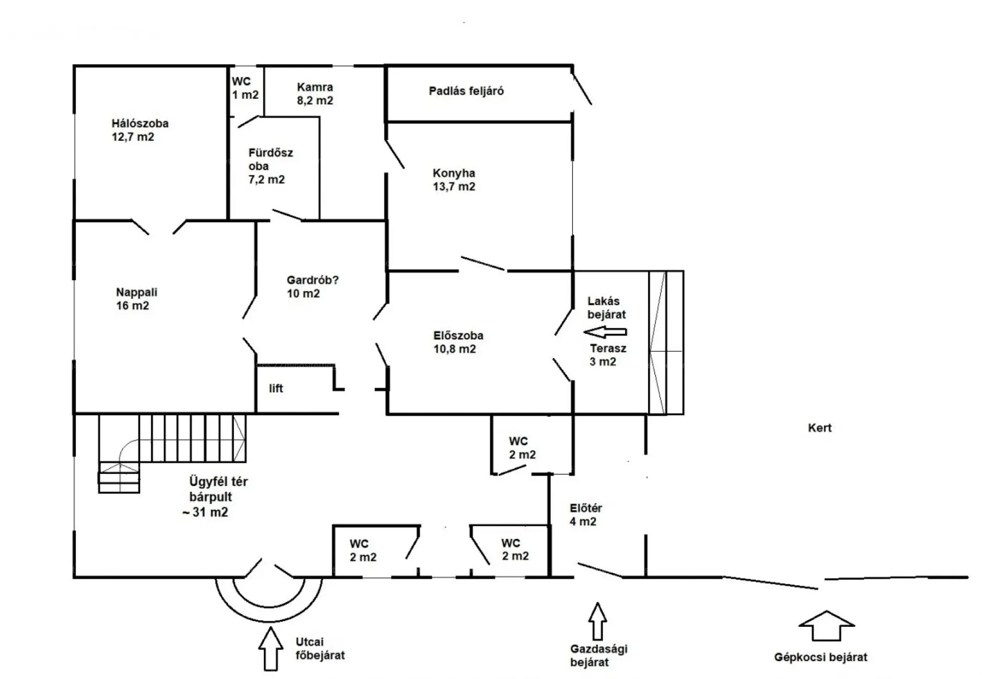
A földszintes családi ház, 117 m2 + 46,5 m2 manzárd beépítésével bővített, nettó lakóterület kínál.

A ház korábban vendéglátóegységként működött. Jelenleg már nem használják erre a funkcióra, de a jellegét megtartották. A bárpult és a vendégtér megmaradt, még az ételliftet is meghagyták, ahogy a vendégmosdókat is..

Az ingatlan többi része, összesen kb. 84 m2, most családi házként, lakáscélra szolgál.
Itt két szoba, gardróbszoba, étkezős konyha, nagy kamra, fürdőszoba, WC és egy előszoba található.
A nappaliban kandalló is képes befűteni a lakórészt, de alapvetően egy gázkazán biztosítja a fűtést radiátorokon keresztül, és a meleg vizet is.

Az utcáról nyíló főbejárattal rendelkező vendéglátó rész összesen 84 m2-es, ebből 38 m2 a földszinten, bárpulttal, vendégmosdókkal, és a manzárdban egy 38 m2-es vendégtérrel és 8,5 m2-es vendégmosdóval rendelkezik.

A ház kívül átlagos állapotú, részben szigetelt, a tetőszerkezete stabil és ellátja a funkcióját.
A belső állapot minden részében működőképes ugyan, de lefújatást igényel.

A képek között látványtervek is megtalálhatók.

Irányár: 34.900.000 Ft
Elérhetőség: +36703833318

Map

Pilis

Crime Map

Szimeth Norbert Agent
Telefonszám +3670383
abcd