Budapest, VIII. kerület

74.9 million HUF
1 997 333 HUF/m²
Floor Area
36m2
Rooms
1
Balcony
3m2

Premium Loan Offer

Down Payment
info
14 980 000 HUF
+
Loan Amount
info
59 920 000 HUF
=
Monthly Installment
info
465 382 HUF/month

For sale apartment (brick-built)

Floor Area
36 m²
Balcony Area
3 m²
Has Garden
No
Number of Rooms
1
Heating
Gas Boiler
Property Condition
Renovated
Year of Construction
1950
Building Floors
3 Stories
Floor
2nd Floor
Has Basement
No
Elevator
Yes
Solar Panel
No
Insulation
Yes
Parking Space
Street Parking
View
Street View
Air Conditioned
Yes
Orientation
East
Panel Program
No

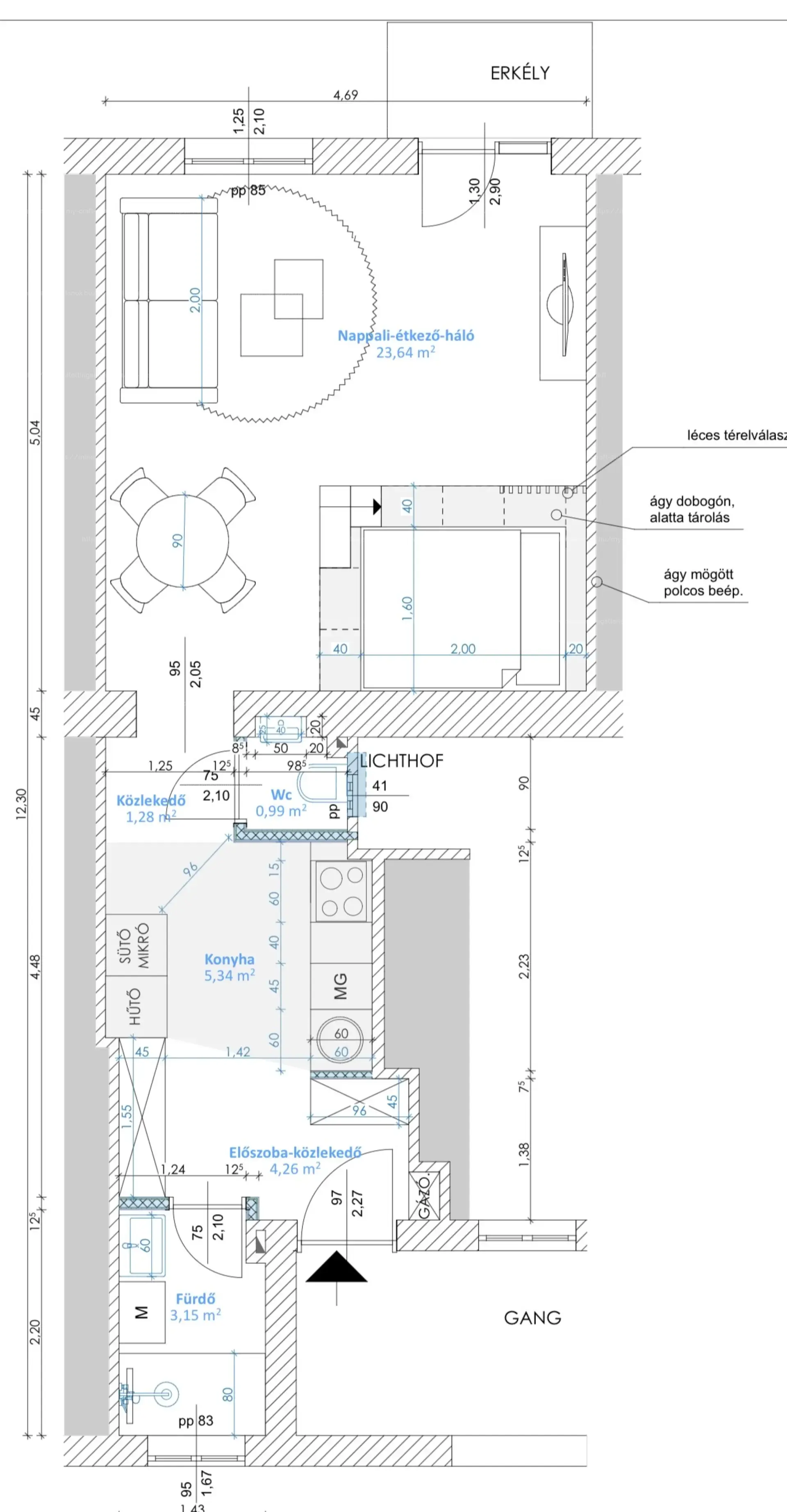
Description

Frissen és minőségben felújított
Világos, csendes lakás
Felújított, liftes házban

TULAJDONOSTÓL eladó a 8. kerület Kisfaludy utca 13-ban, egy igényesen felújított 38 nm + 3 nm erkélyes, 2.emeleti, 1 szobás lakás.

A lakás egy karbantartott és kifejezetten csendes házban található. A közelmúltban megtörtént a ház homlokzati felújítása, új lift került beépítésre, és az elektromos hálózat is korszerűsítésre került.
A lakásfelújítás során a beltér teljes körűen megújult falon kívül és belül egyaránt.

A felújítás során megtörtént
- az elektromos vezetékek cseréje
- villanyóra szabványosítása, bővítése 32A
- vízvezetékek cseréje
- radiátorok cseréje
- cirkókazán kiépítése, kémény bélelése
- nyílászárók cseréje (ajtók, ablakok)
- az összes ablakon redőny és szúnyogháló található
- parketta cseréje
- hidegburkolatok cseréje (minőségi járólapok, csempék)
- gyönyörű, gépesített konyha került kialakításra (sütő, főzőlap, fagyasztós hűtőszekrény, mosogatógép, páraelszívó, mikró)
- klíma is beszerelésre került

Az ingatlan felújítása során módosítottuk az alaprajzot, így a lakás belső elrendezése kiváló. A legoptimálisabb helykihasználás végett az ágyat megemeltük, alá a ruhák tárolására alkalmas szekrényeket tettünk. A fürdő és a wc külön helyiségben található, a fűtésről kondenzációs cirkókazán gondoskodik. A 3 nm-es erkély a csekély forgalmú, egyirányú utcára néz.

A lakás a liftes társasház második emeletén van, kelet-nyugati tájolású, kifejezetten csendes, világos, besüt a nap. A lakóház tiszta, rendezett, a lakóközösség kulturált. A lokáció zseniális, a Corvin Plázától 200 méterre, a nyüzsgő belvárosban található, mégis egy nyugis kis utcában. Metró, 4-6-os villamos, buszok, éjszakai járatok, minden megtalálható, ami kell.
Abszolút ideális befektetésnek, fiataloknak, egyetemistáknak, egyedülállóknak vagy egy párnak.
Befektetőknek: rövidtávú lakáskiadás jelenleg is megoldható.
Tehermentes ingatlan, azonnal költözhető, 1/1 tulajdonos.

Közös ktg: 17.000.-

A beépített gépek és bútorok a vételár részét képezik, többi bútor és berendezési tárgy, dekoráció külön megállapodás alapján, akár a teljes bútorzattal együtt megvásárolható.

Korábbi referenciákat itt talál: https://ingatlanokfelujitasa.hu/referenciak/

Kedves INGATLANOSOK! Szinte minden ingatlanirodánál van kontaktom, ha nem megy egyedül, meg fogom keresni őket. Addig meg köszönöm, hogy nem hívogatnak :-)

Ára: 74,9 millió

Érdeklődni: 0630 625-8808

Map

Budapest, VIII. kerület

Crime Map

erika.vasziljevics@gmail.com Agent
Telefonszám +3630625
abcd