https://minositettingatlanok.hu/en/real-estate/0211647
Náfrádi Antal Agent
36309315351
QR kód

Alsónémedi

95 million HUF

612 903 HUF/m²
Floor Area
151m2
Plot
311 m²
Rooms
5

For sale house (family house)

Floor Area
151 m²
Plot Area
311 m²
Balcony Area
8 m²
Has Garden
Yes
Number of Rooms
5
Property Condition
Good Condition
Year of Construction
1980
Building Floors
2 Stories
Has Basement
No
Attic
property.house_attic.attic
Convertible Attic
Built-in
Elevator
No
Solar Panel
No
Insulation
No
Parking Space
Private Garage
View
Street View
Air Conditioned
Yes
Orientation
Southeast
Panel Program
No

Description

Alsónémedi fő utcáján, az egyik legközpontibb helyen akár 2 generáció lakhatására, vagy üzleti elképzelés megvalósítására is alkalmas családi ház eladó.

Itt aztán karnyújtásnyira van minden, amit egy település központja nyújthat: buszmegálló, Polgármesteri Hivatal, bankfiók, posta, boltok, pékség, cukrászda, étterem, jégpálya csak néhány percnyire.

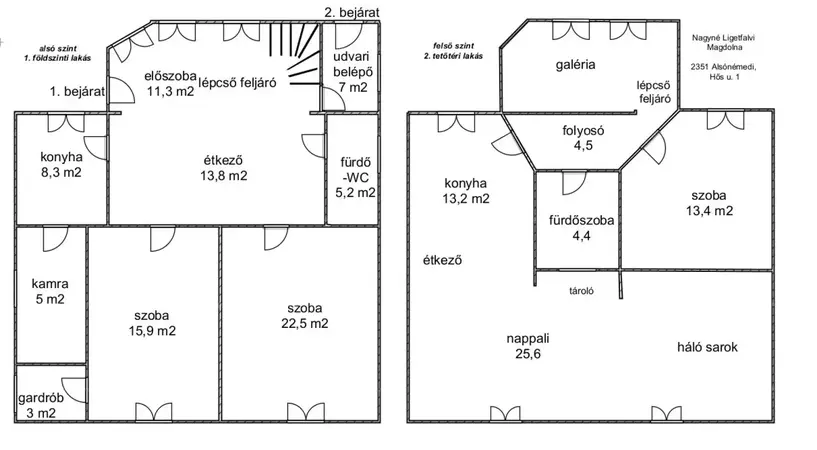
A 311 m2-es telekre téglából épült belső 2 szintes, 151 m2-es ház többszöri bővítés, modernizálás során nyerte el mai elrendezését. Az alsó szinten 2 szoba, gardrób, tágas előszoba-étkező, konyha, kamra, fürdő és udvari bejáratot is biztosító kazánház található. A felső szinten fürdőszoba, jelenleg egy térben kialakított konyha, étkező, nappali és hálósarok, valamint 1 külön szoba van.

Fűtése gáz-cirkó, padlófűtéssel és radiátorokkal, az utcai szobákban konvektorokkal. Alternatív lehetőségként működő cserépkályha is rendelkezésre áll. Hűtése 2 klímával megoldott.
Bejárati ajtó és az ablakok műanyagra lettek cserélve, melyeket redőny, szúnyogháló véd.

Az udvaron, távirányítós kapun behajtva, külön épületben 20 m2-es garázs szolgál az autó tárolására.

Az udvar füvesített, 1-2 díszfával, a garázs és a lakóépület között térkővel borított privát terasz szolgál a kinti pihenéshez.

Az ingatlan tehermentes, a költözés rövid időn belül megoldható. Bútorzat megegyezés tárgya.