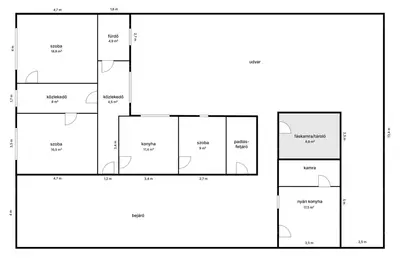
47.9
million HUF
431 532 HUF/m²
Békéscsaba
Floor Area
111m2
Plot
2923 m²
Rooms
3